План подстанций — основа безопасного и эффективного электроснабжения
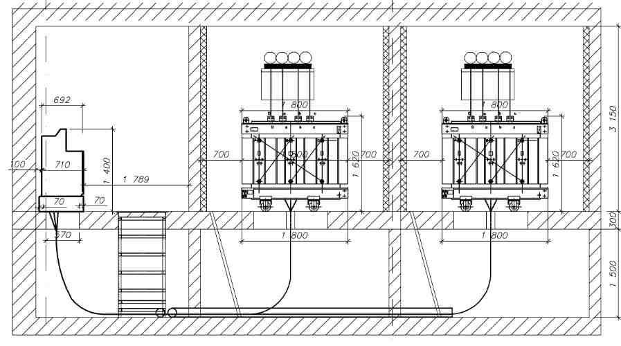
План подстанции — это часть проектной документации, содержащая графическое и текстовое описание размещения силового оборудования, трансформаторов, распределительных устройств, РЗА, кабелей, заземления и вспомогательных систем. Правильно составленный план подстанции обеспечивает надежную и безопасную эксплуатацию, удобство обслуживания и соблюдение всех технических регламентов.
Мы проектируем трансформаторные и распределительные подстанции различного уровня напряжения — от 0,4 кВ до 110 кВ и выше. Планы выполняются в соответствии с ПУЭ, ГОСТ, СНиП и ТУ заказчика, с учетом особенностей участка, архитектурных решений и норм промышленной безопасности.
Что включает план подстанции
-
схема размещения оборудования внутри здания или на площадке;
-
трассы кабельных линий и шинных соединений;
-
план заземления, молниезащиты и вентиляции;
-
проект фундаментов, проходов и проемов;
-
интеграция учета, сигнализации, АВР, РЗА и других систем;
-
поэтажные планы, аксонометрические схемы, монтажные чертежи.
Для каких подстанций разрабатываются планы
-
КТП наружной и внутренней установки;
-
ПС 6/10/35/110/220 кВ;
-
модульные подстанции, комплектные распределительные устройства;
-
РП, ГРЩ, ВРУ и щиты на вводе в здание;
-
временные, строительные, автономные энергоблоки.
Преимущества нашей разработки
-
учет реальных условий площадки и компактное размещение оборудования;
-
точное соблюдение норм безопасности и эргономики;
-
экономия места и материалов за счет продуманной компоновки;
-
сопровождение на всех стадиях согласования и реализации проекта;
-
возможность 3D-визуализации плана по желанию заказчика.

