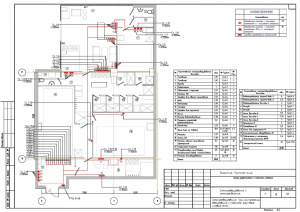
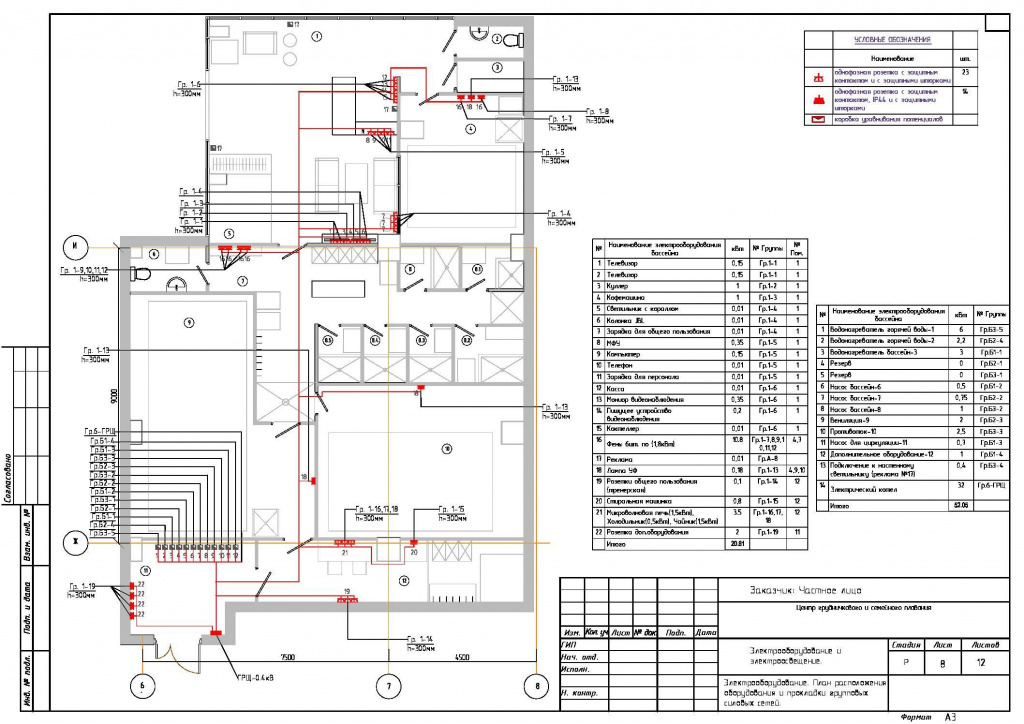
Что включает проектное решение
Проектное решение по электроснабжению определяет расположение источников питания, распределительных устройств, линий электропередачи, схемы подключения и учёта, системы заземления и молниезащиты. Оно необходимо для получения технических условий, согласования с РЭС, KEGOC, Энергонадзором и дальнейшего строительства.
Состав проектной документации
-
анализ исходных данных, определение точек подключения;
-
расчёт нагрузок по категориям надёжности;
-
трассировка кабельных и воздушных линий, определение типа прокладки;
-
выбор сечения кабелей, марки оборудования, защитных устройств;
-
схемы ВРУ, щитов, распределительных панелей;
-
система заземления, молниезащита, освещение территории;
-
разделы ПЗ, ТХ, ЭМ, ЭО, ЭТ, схемы, чертежи, спецификации;
-
сметная документация и графики производства работ.
Где применяется проектное решение
-
новые жилые комплексы и коттеджные посёлки;
-
офисные, торговые и складские помещения;
-
производственные корпуса и логистические хабы;
-
реконструкция электросетей существующих объектов;
-
временные схемы электроснабжения строительных площадок.
Почему выбирают нас
-
соблюдение нормативов KEGOC, Энергонадзора, ПУЭ, СП, СНиП;
-
индивидуальный подбор оборудования под потребности объекта;
-
оптимизация проекта для снижения эксплуатационных расходов;
-
помощь в согласованиях с сетевыми компаниями;
-
цифровая документация для удобства использования и передачи подрядчикам.Перейти в другие разделы:
- Инженерные изыскания для ВЛ
- Проект ВЛ 35 кВ
- Проектирование воздушной линии 110 кВ
- Проект строительства сетей
- Разработка рабочего проекта
- Проектирование ЛЭП
- Проектирование ОРУ 110
- Профессиональное проектирование в электроэнергетике
- Проектирование кабельных линии
- Проектирование ГТЭС
- Проектирование внутренних сетей электроснабжения
- Услуги топографических изысканий
- Проектирование внутренних инженерных систем
- Проектирование ОРУ 10
- Проектирование газопоршневых электростанций

