Проект наружного электроснабжения необходим для организации надежной подачи электроэнергии от источника питания до ввода в здание. Это первый этап создания электросистемы объекта, от которого зависит безопасность, устойчивость и возможность дальнейшего подключения внутренних сетей. Наша компания выполняет проектирование наружных сетей «под ключ» — от получения ТУ до выпуска рабочей документации и согласования с энергоснабжающей организацией.
Что входит в проект наружного электроснабжения
-
Сбор исходных данных и получение технических условий (ТУ);
-
Выбор схемы подключения к существующим сетям;
-
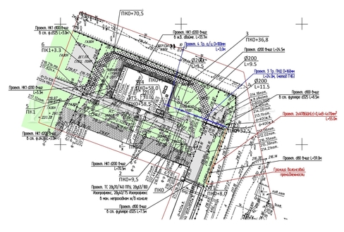
Проект прокладки воздушной (ВЛ) или кабельной линии (КЛ);
-
Выбор и размещение оборудования (КТП, щиты, опоры);
-
Расчет мощности, сечений кабелей, токов КЗ;
-
Проект заземления, молниезащиты, учета электроэнергии;
-
Пояснительная записка, схемы, планы, спецификация оборудования.
Объекты, для которых разрабатывается проект
-
Частные жилые дома, коттеджи, таунхаусы;
-
Многоэтажные жилые комплексы и апартаменты;
-
Коммерческие здания: магазины, офисы, рестораны;
-
Склады, ангары, автосервисы и промышленные площадки;
-
Временные сооружения, строительные городки, бытовки.
Особенности проектирования
-
Строгое соответствие требованиям ПУЭ, СНиП, СП и ТУ;
-
Учет категории надежности и расчетной нагрузки;
-
Выбор экономически обоснованных технических решений;
-
Возможность резервного питания (АВР, ДГУ);
-
Согласование с АО «KEGOC», АО «Алатау Жарык Компаниясы» и другими сетевыми организациями.
Наши преимущества
-
Опыт проектирования наружных сетей с напряжением до 10 кВ;
-
Адаптация под любые типы объектов и технические условия;
-
Бесплатный расчет стоимости и техническая консультация;
-
Использование современных САПР: AutoCAD, Revit, ETAP;
-
Быстрое согласование и сопровождение до ввода в эксплуатацию.

